Appartement 3.5 pièces - Chemin du Verger 4 Collombey
CHF 1'990.-
Appartement de 3.5 pièces neuf
Ref
: EC.43091
- Loyer mensuel brut : CHF 1'990.-
- Loyer mensuel hors charges : CHF 1'790.-
- Charges : CHF 200.-
- Disponibilité : A convenir
- Adresse : Chemin du Verger 4, 1868 Collombey
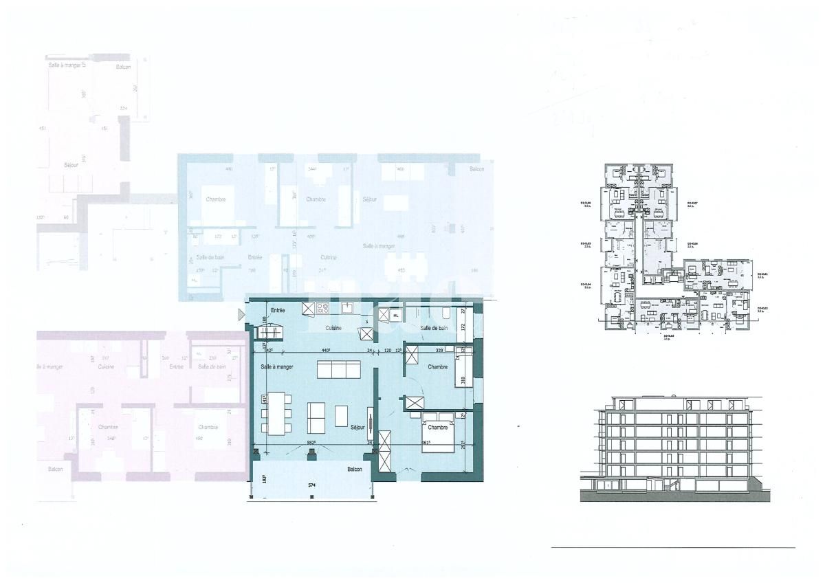
Au sein d'un immeuble neuf, au deuxième étage, cet appartement de 3,5 pièces profite d'une surface de 95 m² et d'un balcon de 11 m².
L'appartement se compose de la manière suivante :
Un hall d'entrée, une cuisine entièrement aménagée et équipée (four, plaques, hotte, lave-vaisselle, réfrigérateur) ouverte sur le salon/séjour avec accès au balcon.
L'appartement compte par ailleurs deux chambres à coucher et une salle de bains avec toilettes.
Une colonne de lavage / séchage est installée dans la salle de bains.
Une place de parc intérieure et une cave complètent cet objet. La cave est équipée d'une prise électrique.
L'appartement est disponible de suite.
Le loyer se...
Caractéristiques
- Résidentiel
- Ascenseur
- Cave
- Cuisine équipée
- Fibre optique
- Triple vitrage
- Buanderie privée
- Stores électriques
- Balcon
- Parking souterrain























